Latest Project News

Science Cafe

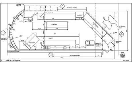
CDG is designing the architecture and interiors for a new dining facility at San Francisco State University. Also included in the plans is an adjacent multi-purpose learning room. See Project Page


After a series of strategy meetings with campus administration, College of Science faculty and students concerning future growth, CDG created longterm plans for multi-purpose learning room, cafe, and renovated plaza.



copyright 2011 caincompaniesinc.com